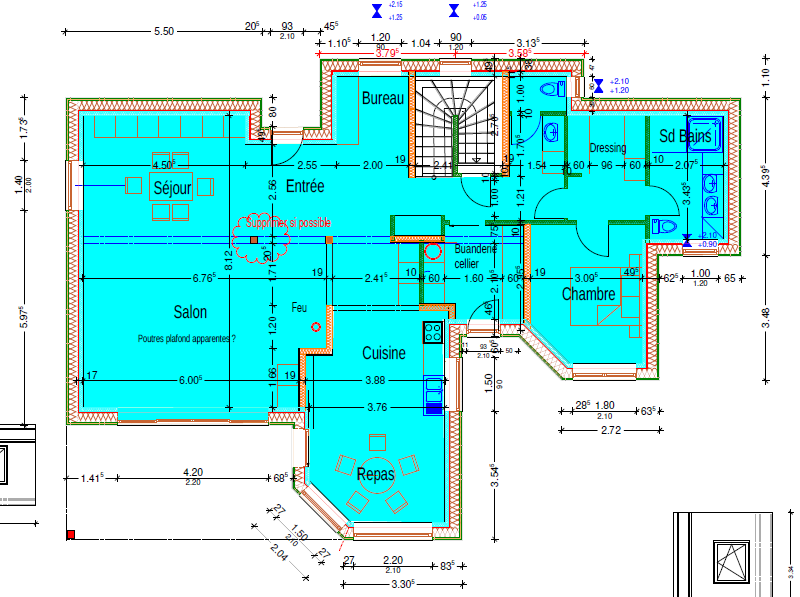
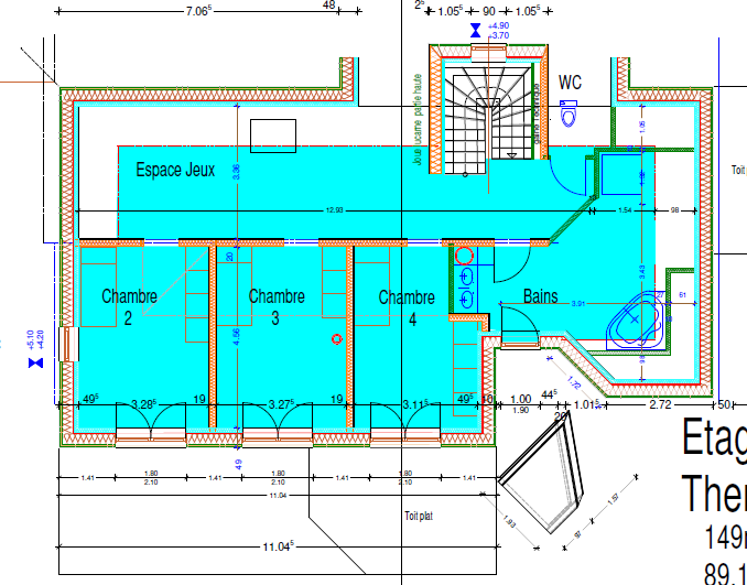
Informations générales :
- Lieu : Flaxlanden
- Système constructif de la maison : ossature bois + isolant paille
- Surface habitable : 222 m2
- volume d’air à traiter : 550 m3
- nombre de pièces : 8
- présence d’étages/sous-sol : 1 sous-sol, 1 étage
- Dimensions de la tranchée (longueur, largeur, profondeur) : 35 m × 2 m × 2 m
- besoin de chauffage : 17 kWh/m2
- débit : min 240 m3/h, max 600 m3/h







